创新洞察
OUR SUCCESSFUL PRACTICE

对空间的综合需求:
空间处在工厂园区中,传统办公空间仅以办公为核心功能,洛客办公室需兼顾平台化、创新性、想象力
综合的业态需求:
展示+办公+洽谈+活动发布+员工宿舍与基础生活化业态
设计策略
OUR SUCCESSFUL PRACTICE
解决方案
OUR SUCCESSFUL PRACTICE



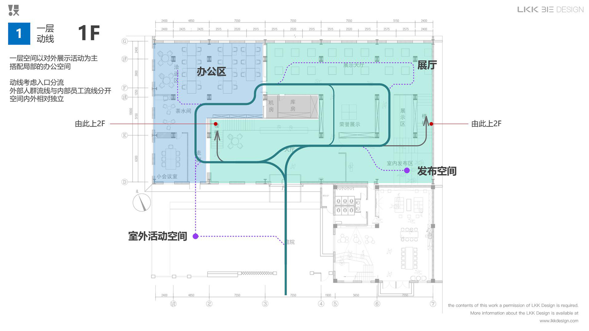
1.一层为公共活动区,包括洛客企业展厅、小型活动分享区与部分设计师办公区。二层为正式洽谈与管理部分,大办公室、开放式营销办公区与空中会议室。
2.以简约的色彩材质搭配凸显设计感,强化工厂大楼带来的创意感。
3.宿舍区以生活化的方式打造一楼公共客厅区域,连接设计生活
相关案例
OUR SUCCESSFUL PRACTICE
蓝狮娱乐是一家用咨询设计的能力,为垂直行业客户,提供产品创新价值的公司。蓝狮娱乐坚持以用户体验为核心,致力于为企业提供行业整体创新解决方案。如需创新设计咨询,请联系专家团队。
即刻联系
Hello!

微信扫一扫
享一对一咨询
享一对一咨询
在线客服

电话咨询
400 692 9699
非在线服务时间,请留下联系方式



一键提交
申请步骤
1.请现在贵站添加好本站的友情链接,要求:
内容健康、未被百度、google等搜索引擎封杀的网站
网站内容跟设计类有关
网站权重2及以上,日均流量300以上
只接受直接文字链接(下拉框、脚本、页面跳转、嵌入页、翻页等均不算)
2.做好链接后,请通过以下方式联系蓝狮娱乐
QQ:597473421
3.已经开通我站友情链接并且符合本站友情链接要求的网站,经蓝狮娱乐咨询与设计网站管理员审核后,可在我方相关页面显示.
我知道啦























